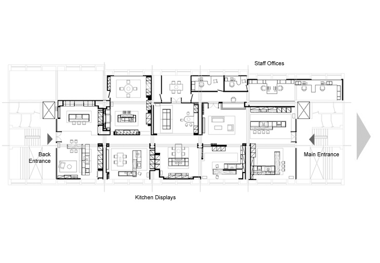
Utopian Creations of Delhi, India, is Mick's featured international interiors project. Under construction in 2011, this very large SieMatic studio is situated in Vasant Kunj, the luxury goods area of Delhi.

The showroom is placed on the first floor of a new 3-story building. The entrance can be from either end, so the plan needed a layout to reflect the conditions. The studio space has a continuous floor throughout, without hierarchy for different products price points. The result is an extremely "shoppable", meandering space with wonders around every corner.

The gallery of images are color marker sketches done by Mick as part of the original concept presentation to the client.

 
  © 2011 Mick Ricereto - All Rights Reserved
Mick Ricereto Interior + Product Design / 1636 S. Hanover Street / Baltimore, MD / 21230 / mick@mickdesign.com