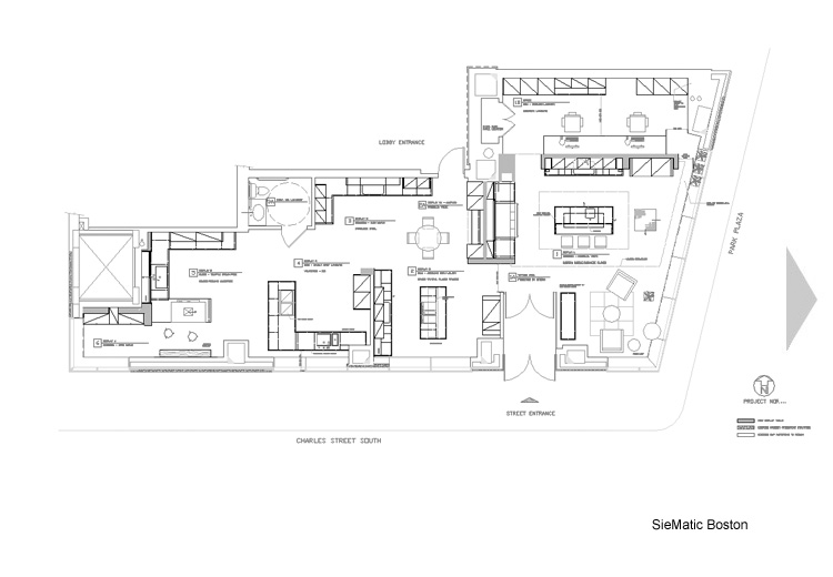
SieMatic Boston is located on South Charles Street, just off the Commons. Blessed with great window frontage but a fairly small and narrow footprint, the designers would need to fit 5 displays and the requisite office to meet the program requirements. A side entrance complicated the matter.

The solution was to conceal the staff spaces at rear, and split the main space into two areas at the entrance point. The concept was that visitors would naturally gravitate towards the larger, brightly lit front space where a staff member could greet them. The remainder of the showroom is more open, with liquid edges between each area as opposed to solid rooms or zones.

 
  © 2016 Mick Ricereto - All Rights Reserved
Mick Ricereto Interior + Product Design / Philadelphia, PA / 19125 / mick@mickdesign.com